






Përshkrim
‼️Shitet Apartament 1+1+verand tek kompleksi Viva 2 ( rruga Javer Malo)‼️INFO:
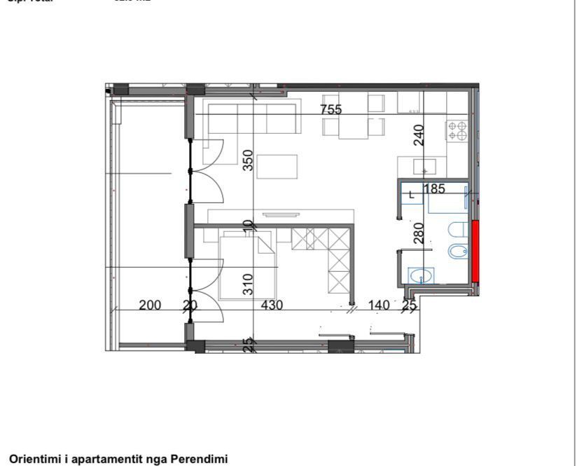
◾️Kati 8
◾️76.7m2 total
◾️13,8 m2 verand
◾️53.3m2 neto
◾️ Me ashensor
◾️fazë ndërtimi
ORGANIZMI:
■Sallon ndenje+guzhine
■1 Dhomë gjumi
■1 tualet
■verand
💶CMIMI 125.600 euro
📍Viva 2 me një arkitekturë elegante dhe një strukturë të balancuar, ndërtesa shtrihet në 10 kate mbi tokë, duke përfshirë 9 kate banimi, 1 kat me njësi shërbimi, si dhe 2 kate nëntokësore për parkim dhe facilitete. Lartësia e kateve në objekt do të jetë 3.23 m dhe lartësia e njësive të shërbimit do të jetë 5.5 m. Teknologjitë inovative, arkitektura e sofistikuar dhe materialet e markave më të mira të industrisë së ndërtimit, ndërthuren për të sjellë Viva Complex, një projekt rezidencial i pozicionuar në rrugën Javer Malo, në një zonë që është pjesë e masterplanit të Bashkisë së Tiranës, me qëllim rivitalizimin e kësaj zone dhe ofrimin e një ambjenti të përshtatshëm për një jetesë cilësore.
Për më shumë informacionë më kontaktoni
Karakteristikat e pronës
- Ashensor
Kodi 18893752
